This floor plan is SOLD OUT, but you can see the features of this plan below.
The photos above are courtesy of Green Kat Photography (thank you!). This completed Birch Plan has been sold, but it is nice to see the staged home to get a sense of the size.
All Birch plans are SOLD.
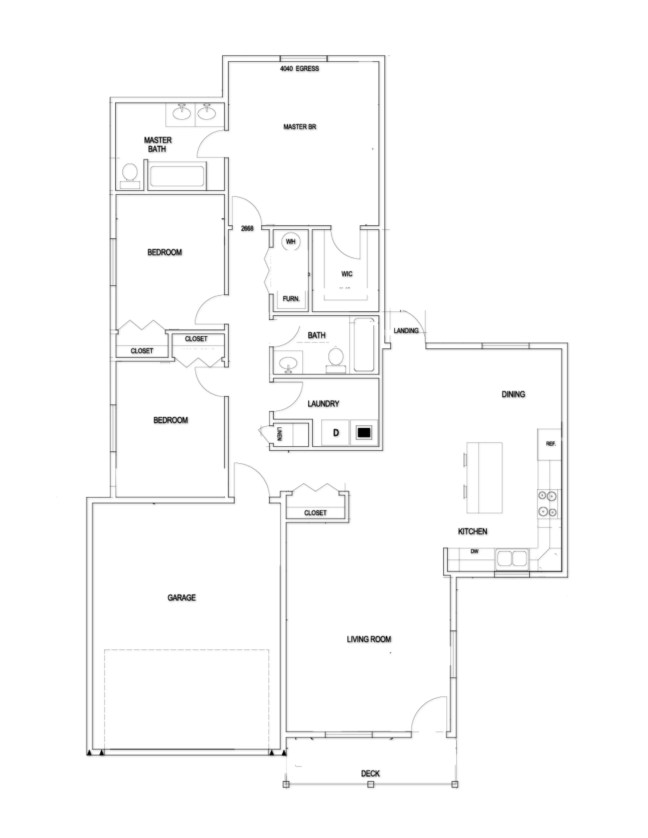
Floor Plan
The Birch Plan are SOLD OUT in Phase 1.
To find out more about Bloomstone, please use the contact form below:
If you are interested in a custom home, Point Arbor Inc. would be glad to build from your blueprints or help you find the perfect plan.

